2、精细化细部考量设计
北立面常见的如电梯井(交通核)、设备平台等,也都考虑了精细化的设计,如大面积玻璃、艺术装置等加持。
电梯井(交通核)
比如,看到锦江府·南苑的外立面,第一感觉就是分不清南立面和北立面。
因为其北立面采用了正立面同等级别的大面积玻璃,拒绝死角,连通常不太受关注的电梯井(交通核)外部维护部位也是大面的玻璃或铝板,这是很多项目主立面都不舍得的成本,同时,搭配超窄边框,整个北立面浑然一体。

锦江府·南苑 北立面 效果意境图
成都中交·凤栖首府为了更好的观赏绿廊和中庭景观,项目的电梯全部采用了观光电梯,这就意味着每一栋住宅的背立面电梯井也使用了通体的玻璃覆盖。每一户的私梯明厅,正面全部封窗交付,侧面则为开敞状态,同时,非常贴心地考虑了开启扇。

成都中交·凤栖首府 效果示意图
中国电建 · 国宾华曦府,背立面电梯井道外部以灰色型材和金属格栅加以装饰。


高新天序背面核心筒位置也采用了大量定制花纹的金属格栅做装饰。


高新天序外立面实景图
南京中海·江湾境北立面的设计上采用了木纹铝板增加立面层次感,用暖色系突出“家”的感觉。

南京中海·江湾境 效果示意图
设备平台
成都中建壹品金沙公馆,为了打造高颜值的南北双立面,让背立面更美观,在空调机位的设备平台创新性的用了定制的祥云纹激光铝板遮蔽。并且在激光铝板上增加了圆孔纱窗,便于后期清洁和防蚊虫,展现出人性化细节关怀。

中建壹品金沙公馆立面细节
苏嘉·至境园对标宝格丽酒店,奢选造价昂贵的金属艺术格栅,点缀北立面,让一个看似不起眼的角落,赫显贵气,浅隐奢华,让内敛之余的张扬,格外吸睛。
而大师级的工艺手法,让北立面横向建筑线条的设计比例,遵循黄金分割,在平衡与稳定、强调与对比、纹理与质感等多维方面中,实现超强的美学视觉,颜值出众,引人入胜。

苏嘉·至境园北立面 效果示意图
香港置地·天湖翠林北侧实体墙面本就不多,但仍把其中一部分替换为金属雕版的艺术格栅,空调位挡板亦换成同款:精巧的扇面镂空、细致繁复的工艺,只是为了些许点缀。


香港置地·天湖翠林建筑立面的金属雕版 意境图
三盛长乐悦龙门项目将朝外的“背“立面作为主立面来反复推敲设计,通过平面和功能的整体协调,精细化处理楼梯间、设备平台、生活阳台等功能性元素,使“背”立面简洁纯粹的同时又富有韵律。



建筑摄影:王道怀、几张建筑摄影
四川师大站TOD·锦江府·南苑,设计统一并合理考虑了室外空调机位的隐蔽设计,竖向铝板格栅不仅遮挡了设备平台,更增加了建筑的线条感。

四川师大站TOD·锦江府·南苑 效果意境图

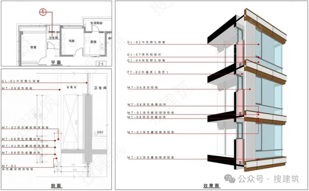
△设备平台节点示意图
仅供示意,具体节点做法以现场实施版深化图为准
杭州天阳·湖与舍把空调机位作为竖向立面线条的一部分,结合外立面整体设计的,完全融合到了整个建筑体块中,最终立面呈现的效果非常协调,从实景看,很难找到哪里是空调机位。


杭州天阳·湖与舍 实景图
3、生态立面
通过在背立面栽种绿植,既能有效遮挡阳台设备、管道、晾晒的衣物等,还可增加建筑的生态性。
比如,西安金地玖峯禧洋房,打造南北双颜值立面,尤其对背立面进行升级优化,业主后期可在北向阳台增加绿植提高观赏性。

金地·玖峯禧洋房南立面 效果图

金地·玖峯禧洋房北立面 效果图
比如,成都中国铁建·西派善成立面设计汲取新加坡立体城市建筑理念。在背立面的处理上,关注到后勤区域与管道隐藏等细节,在后勤阳台处打造金属格栅和垂直绿化,在增加背立面精致度的同时,对阳台设备、后期晾晒以及竖向管道进行有效遮挡,进一步增强立面的简洁感、美观度与和谐度。

成都西派善成实景美学体验区背立面实景图
结语
在这个如今疯狂卷产品力时代,外立面的“卷”,仅停留在常规的南立面上已经远远不够了,北立面设计上也必须下足功夫。